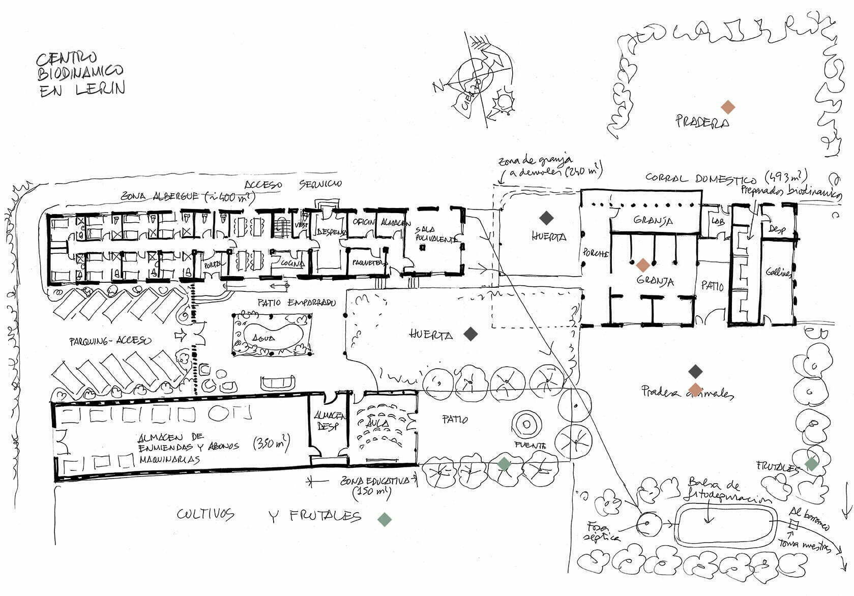
Organismo granja
La individualidad de la granja se crea desde dentro, es una organización de seres, suelo fértil, bosque, pradera, humedad, tierra cultivada, árboles, arbustos, animales domésticos y salvajes y un grupo de seres humanos viviendo y trabajando en este organismo.
Al igual que los organismos naturales, cada uno de los órganos de la granja está al servicio del todo, cada uno aportando su condición.
Cada animal necesita del cultivo y el cultivo del animal.
Si solo tenemos plantas nos encontraremos con una deficiencia de nutrientes, mientras que si solo tenemos animales tendremos un exceso de estiércol.
Esta biodiversidad aporta una riqueza al planeta Tierra que hace que todos los organismos podamos vivir en una perfecta simbiosis.

